NEW BUILD VILLA WITH THE SEA VIEWS IN CUMBRE DEL SOL
A house with a clear concept, to create a fusion between indoors and outdoors, by obtaining open stays, bright and functional rooms. The living room invades the terrace and invites you to enjoy the wonderful Mediterranean climate, which gives us almost 300 days of sunshine a year.
Conceived in open L-shaped modules, the villa embraces the main garden, where an impressive infinity pool merges with the sea. A space open to the outside, which invites you to enjoy the sun and the Mediterranean climate, but oriented in such a way as to achieve maximum privacy.
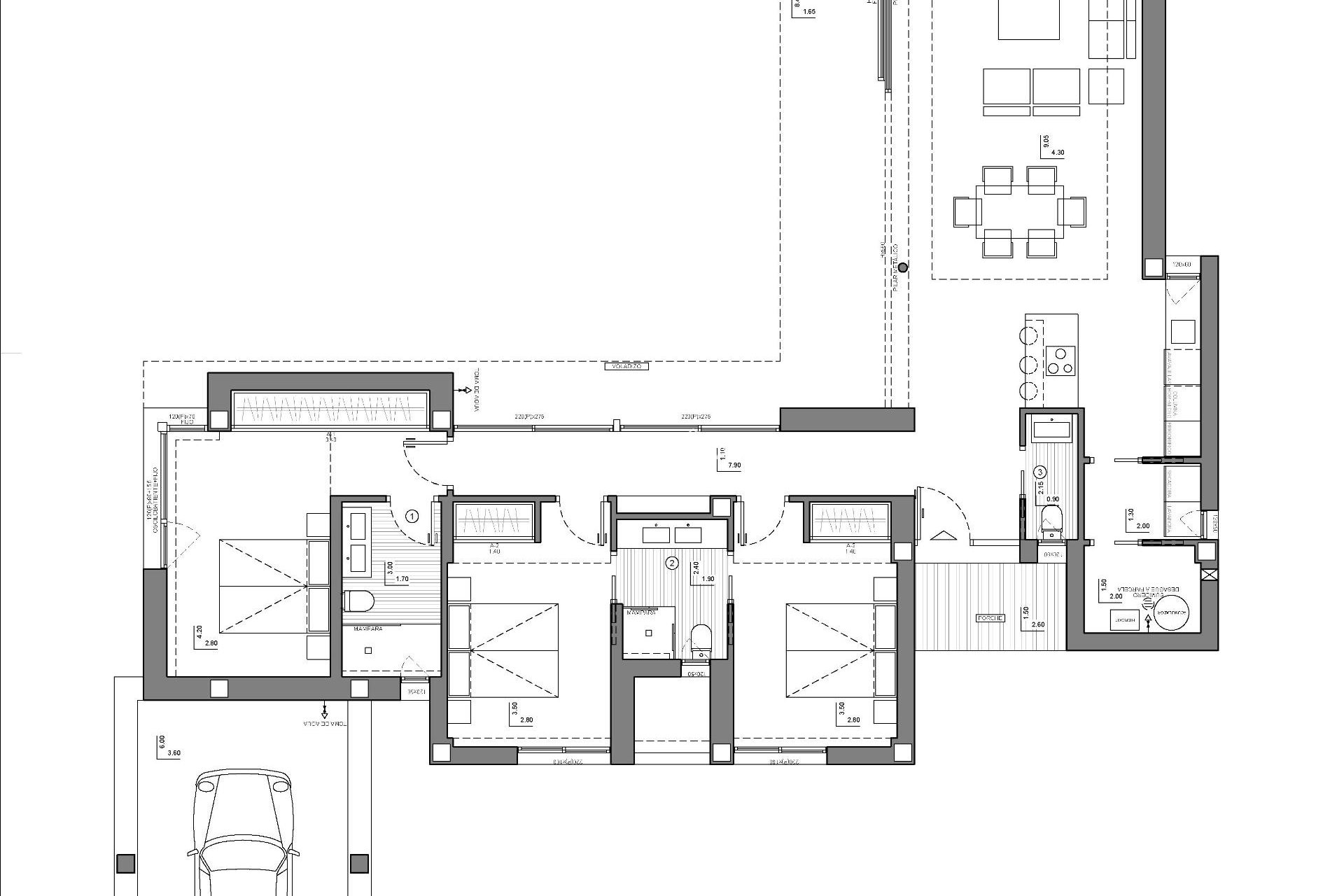
The villa is divided into two levels. Upstairs is the sleeping area, where two bedrooms share a common bathroom, while the master suite becomes a private sanctuary with its own bathroom and dressing room. From the rooms, you can enjoy breathtaking views of the sea and the mountains, creating a feeling of serenity and tranquillity that invites you to relax.
On the ground floor is the day module, which opens to the outside, creating a sense of continuity and connection with the surroundings. The day module consists of an entrance hall, a guest toilet, and the tandem formed by a large living-dining room and kitchen that are perfectly integrated. Both modules converge in the outdoor area with the terrace and swimming pool as a point of connection.
New Build Villa contemporary style blends with Mediterranean tradition, creating a harmonious and balanced space that invites relaxation and enjoyment of the senses. The main garden, with its Mediterranean vegetation and aromatic plants, connects you with nature.
This a unique and special villa, designed to enjoy life to the fullest and to create unforgettable memories in dreamlike environment. A villa that invites you to dream of a life full of luxury, comfort and beauty, in a space where architecture and nature merge in a perfect symphony.
594