Appartement. Nouvelle construction Pueblo. Alicante

Ref: NB-65092
170.000€

Vue d'ensemble

Appartement. Nouvelle construction Pueblo. Alicante

Réf: NB-65092
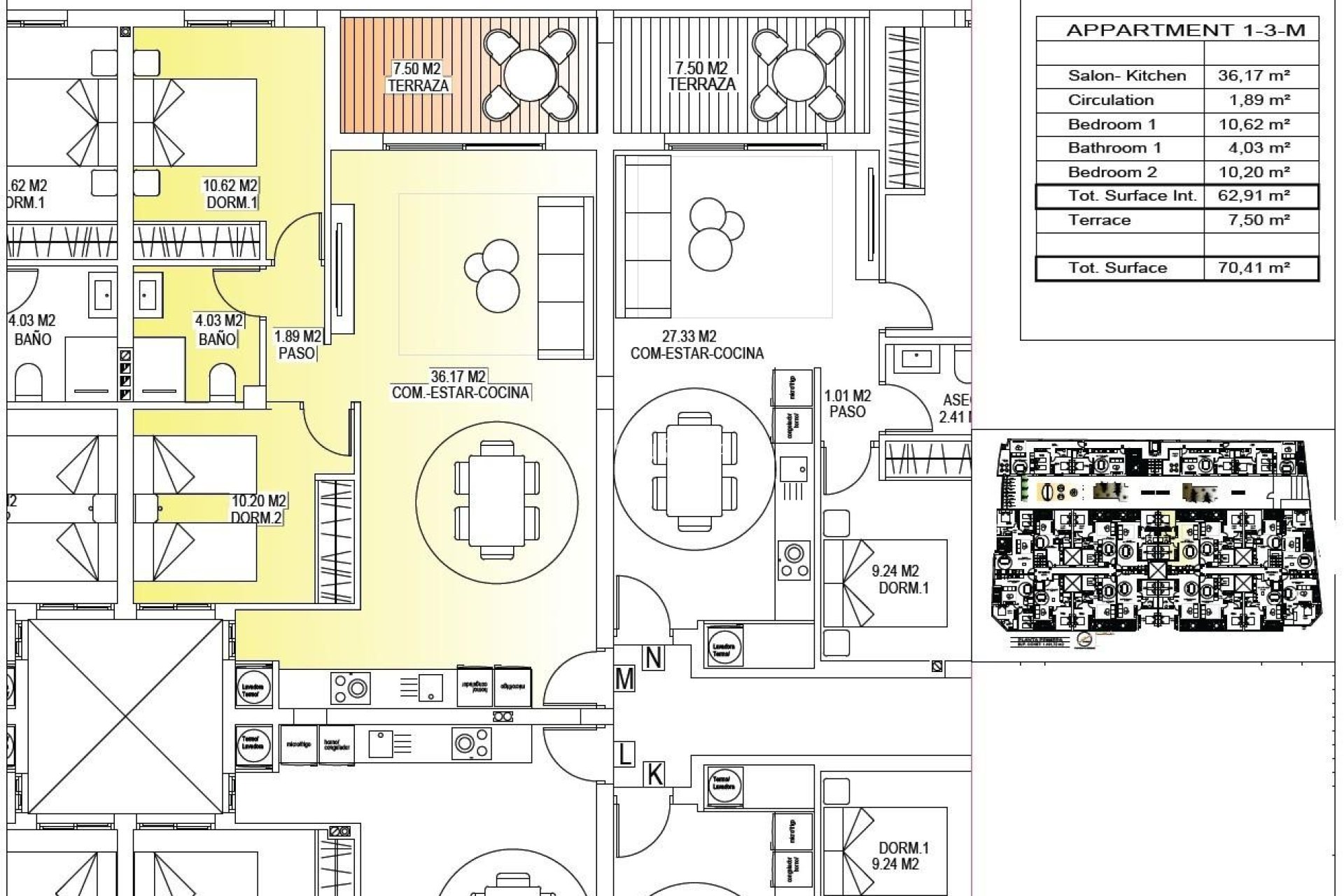
  • 70m2
  • 2
  • 1
  • Oui
Chambres:2
Salles de bain: 1
Construit: 70m2
Utile: 62m2
Piscine: Oui
Distance à la plage: 10000 Mts.
Sortie de fumée
Terrasse

Description de la propriété

Carte de localisation

Demander des informations

WhatsApp Contact par Whatsapp

Formulaire de contact

Responsable del tratamiento: Sunspania Real Estate, SL, Finalidad del tratamiento: Gestión y control de los servicios ofrecidos a través de la página Web de Servicios inmobiliarios, Envío de información a traves de newsletter y otros, Legitimación: Por consentimiento, Destinatarios: No se cederan los datos, salvo para elaborar contabilidad, Derechos de las personas interesadas: Acceder, rectificar y suprimir los datos, solicitar la portabilidad de los mismos, oponerse altratamiento y solicitar la limitación de éste, Procedencia de los datos: El Propio interesado, Información Adicional: Puede consultarse la información adicional y detallada sobre protección de datos Aquí.
WhatsApp