Villa de luxe en bord de lac au Santa Rosalia Lake and Life Resort, en Murcie
Villa neuve exclusive dans un complexe touristique unique
Découvrez cette villa neuve exceptionnelle située en bord de lac au sein du prestigieux Santa Rosalia Lake and Life Resort, dans la région de Murcie. Implantée sur un vaste terrain de 500 m², cette propriété offre une occasion rare de profiter d’une architecture moderne, d’une intimité totale et d’un style de vie de villégiature dans l’un des complexes les plus innovants du sud de l’Espagne.
La villa s’étend sur le rez-de-chaussée, un sous-sol et un solarium sur le toit, alliant un design contemporain à des espaces de vie spacieux et des finitions de haute qualité. Son emplacement privilégié offre une vue directe sur le magnifique lac artificiel, créant un environnement paisible et exclusif.
Un aménagement spacieux avec un espace de vie à double hauteur
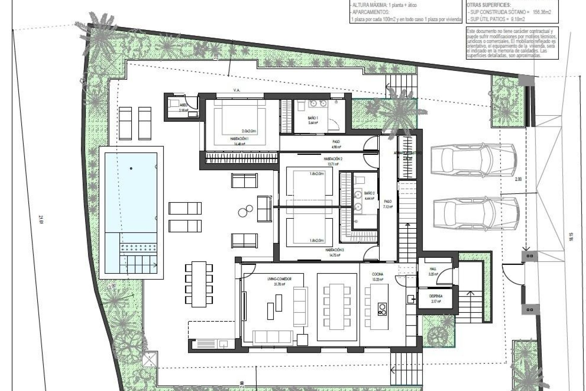
Le rez-de-chaussée comprend un salon et une salle à manger ouverts et lumineux, dotés d’une spectaculaire double hauteur sous plafond qui accentue la sensation d’espace et la lumière naturelle. La cuisine moderne est entièrement équipée d’appareils électroménagers BOSCH et s’ouvre directement sur la terrasse extérieure et la piscine privée.
La propriété comprend trois chambres et trois salles de bains, ainsi que des toilettes pour invités. L’agencement est conçu pour offrir à la fois confort et fonctionnalité, ce qui en fait un lieu idéal pour la vie de famille ou pour recevoir des invités.
Sous-sol baigné de lumière naturelle et offrant des possibilités de personnalisation
L'une des caractéristiques remarquables de cette villa est son sous-sol spacieux, baigné de lumière naturelle grâce à des patios à l'anglaise. Ce niveau offre une grande flexibilité et peut être aménagé en espaces de vie supplémentaires, tels qu'une salle de sport, un home cinéma, un hébergement pour les invités ou un bureau.
Le sous-sol comprend une pré-installation pour la climatisation ainsi que les raccordements pour l'eau et l'électricité, permettant aux propriétaires d'aménager l'espace selon leurs besoins.
Solarium privé et espaces de vie extérieurs
Le solarium sur le toit offre un espace idéal pour la détente et la vie en plein air, avec une pré-installation pour un jacuzzi et une vue dégagée sur le lac et le complexe hôtelier environnant. La villa comprend également une piscine privée et des espaces extérieurs paysagers conçus pour profiter du climat méditerranéen toute l'année.
Équipements haut de gamme et efficacité énergétique
La propriété est construite avec des matériaux haut de gamme et comprend une porte d'entrée renforcée, une climatisation centralisée, six panneaux solaires photovoltaïques et des finitions de grande qualité dans toute la maison.
Un style de vie de villégiature avec des équipements exceptionnels
Le Santa Rosalia Lake and Life Resort est une communauté fermée avec un service de sécurité 24h/24, conçue autour d’un espace vert de 126 000 m². En son cœur se trouve un lac spectaculaire aux eaux cristallines de près de 17 000 m², entouré de plages de sable blanc, de palmiers et d’espaces de loisirs.
Les résidents peuvent profiter de sentiers de marche et de vélo, d’installations sportives, de courts de paddle et de tennis, d’un mini-golf, de parcs pour chiens, d’un club-house et de bars de plage, créant ainsi une expérience de vie unique.
Emplacement de choix à proximité des plages et des parcours de golf
Le complexe est idéalement situé à moins de 4 km des plages du Mar Menor et de la ville de Los Alcázares. Carthagène se trouve à seulement 15 km et l’aéroport international de Murcie à 22 km. Plusieurs terrains de golf sont également accessibles en quelques minutes en voiture.
Une opportunité d'investissement et de style de vie luxueux
Cette villa en bord de lac offre une occasion unique de profiter d'un cadre de vie luxueux dans un complexe hôtelier doté d'équipements exceptionnels et présentant un fort potentiel d'investisse