Villas de Obra Nueva con Piscina Privada en Los Alcázares, Costa Cálida
Exclusivas Villas Modernas a Solo 700 Metros del Mar
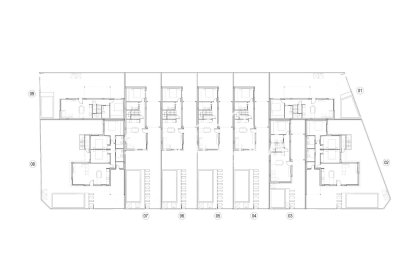
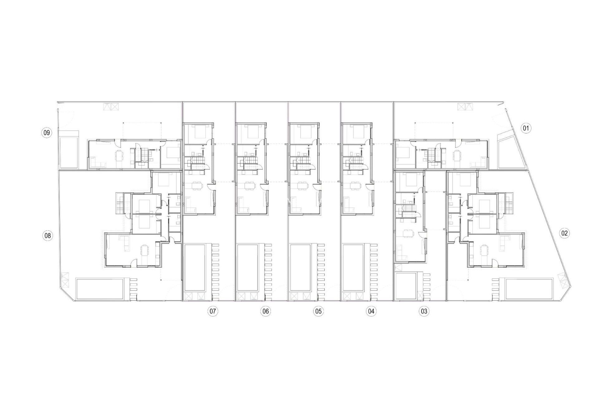
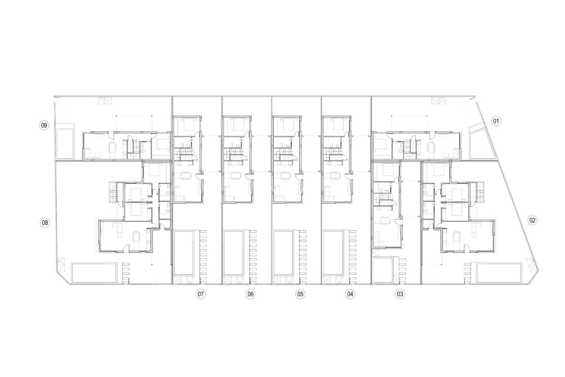
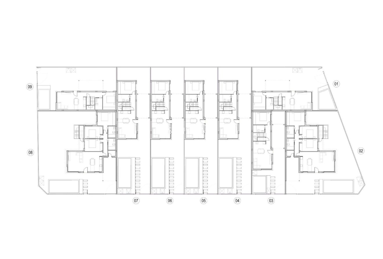
Descubre este exclusivo residencial de 9 villas de obra nueva en Los Alcázares, una de las localidades más valoradas de la Costa Cálida por su cercanía al mar, su ambiente relajado y su excelente oferta de servicios. Cada villa cuenta con piscina privada, garaje cubierto independiente, y ha sido diseñada para ofrecer confort, funcionalidad y estilo contemporáneo.
Diseño Dúplex con Solárium y Orientación Ideal
Las viviendas se distribuyen en dos plantas y cuentan con 3 dormitorios y 2 baños, cocina de estilo abierto completamente equipada, amplio salón comedor, terraza y jardín en planta baja, terraza en planta primera y solárium privado en planta cubierta con cocina de verano. Gracias a sus diferentes orientaciones, permiten aprovechar el sol durante todo el día, todo el año.
Equipamiento de Alta Calidad
Estas villas están diseñadas con materiales de primera calidad y ofrecen:
Piscina privada con ducha exterior
Cocina equipada con electrodomésticos: frigorífico, horno elevado, microondas empotrado, vitrocerámica, campana extractora y lavavajillas integrado
Armarios empotrados forrados con cajoneras
Baños completos con mueble, espejo con luz y mamparas de ducha
Preinstalación de aire acondicionado
Instalación de 2 paneles solares
Cocina de verano en el solárium
Plaza de garaje cubierta en parcela
Ubicación Inmejorable en la Costa Cálida
Situadas a solo 700 metros de las playas del Mar Menor, estas viviendas permiten disfrutar de un entorno natural único con aguas tranquilas y cálidas. Los Alcázares combina un estilo de vida relajado con todos los servicios a mano: supermercados, restaurantes, instalaciones deportivas y centros de salud. Ideal tanto para residencia habitual como para vacaciones.
Distancias a Puntos de Interés
Playa del Mar Menor: 0.7 km
Campos de golf (Roda, La Serena, Mar Menor Golf): entre 3 y 10 km
Aeropuerto Internacional de Murcia: 30 km
Cartagena: 22 km
Centro comercial Dos Mares: 13 km
Puerto deportivo de Los Alcázares: 2 km
Tu Refugio de Sol y Tranquilidad en el Mediterráneo
Estas villas ofrecen la combinación perfecta entre diseño moderno, privacidad, confort y una ubicación privilegiada.
Contacta con nosotros hoy y agenda tu visita para descubrir tu próxima vivienda junto al mar.