COMPLEJO DE OBRA NUEVA EN VILLAYOJOSA
Complejo residencial de 42 apartamentos y áticos de obra nueva en Villayojosa situado a pocos pasos de la playa.
Viviendas de lujo de 1, 2 y 3 dormitorios diseñadas hasta el más mínimo detalle.
A tan sólo 200 metros del mar, con amplias terrazas perfectas para relajarse y disfrutar de las vistas al mar.
Situada en un entorno natural, esta promoción cuenta con piscina, jardines, zona infantil, gimnasio equipado y sauna.
Viviendas en planta baja de 1 dormitorio y 1 baño con terrazas y jardines privados.
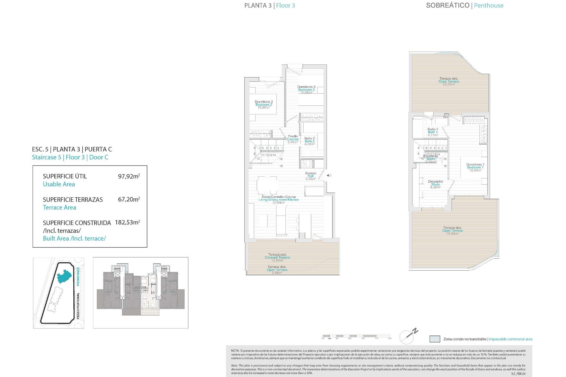
Apartamentos de 1 y 2 dormitorios y 1 y 2 baños con amplias terrazas donde dispone de una zona cubierta y otra descubierta.
Áticos de 3 dormitorios y 2 baños con terrazas y solariums privados.
Todas las viviendas disponen de plaza de parking privada.
Villajoyosa es una perla escondida en la Costa Blanca española. Este colorido pueblo pesquero se encuentra entre Benidorm y El Campello, a unos 30 minutos en coche del aeropuerto de Alicante.
En los últimos años, este idílico pueblo se ha convertido en un lugar muy solicitado por residentes de segundas residencias y turistas. Villajoyosa tiene mucho que ofrecer, desde la amplia playa de arena hasta las estrechas y coloridas calles del centro histórico.
Hoy en día, más de treinta mil personas viven en Villajoyosa y, sobre todo, las coloridas casas ofrecen toneladas de inspiración para los numerosos artistas.
Villajoyosa también es conocida por su delicioso museo de la fábrica de chocolate Valor.